Photography
Documentation
Projects
About
Photography
Documentation
Projects
About
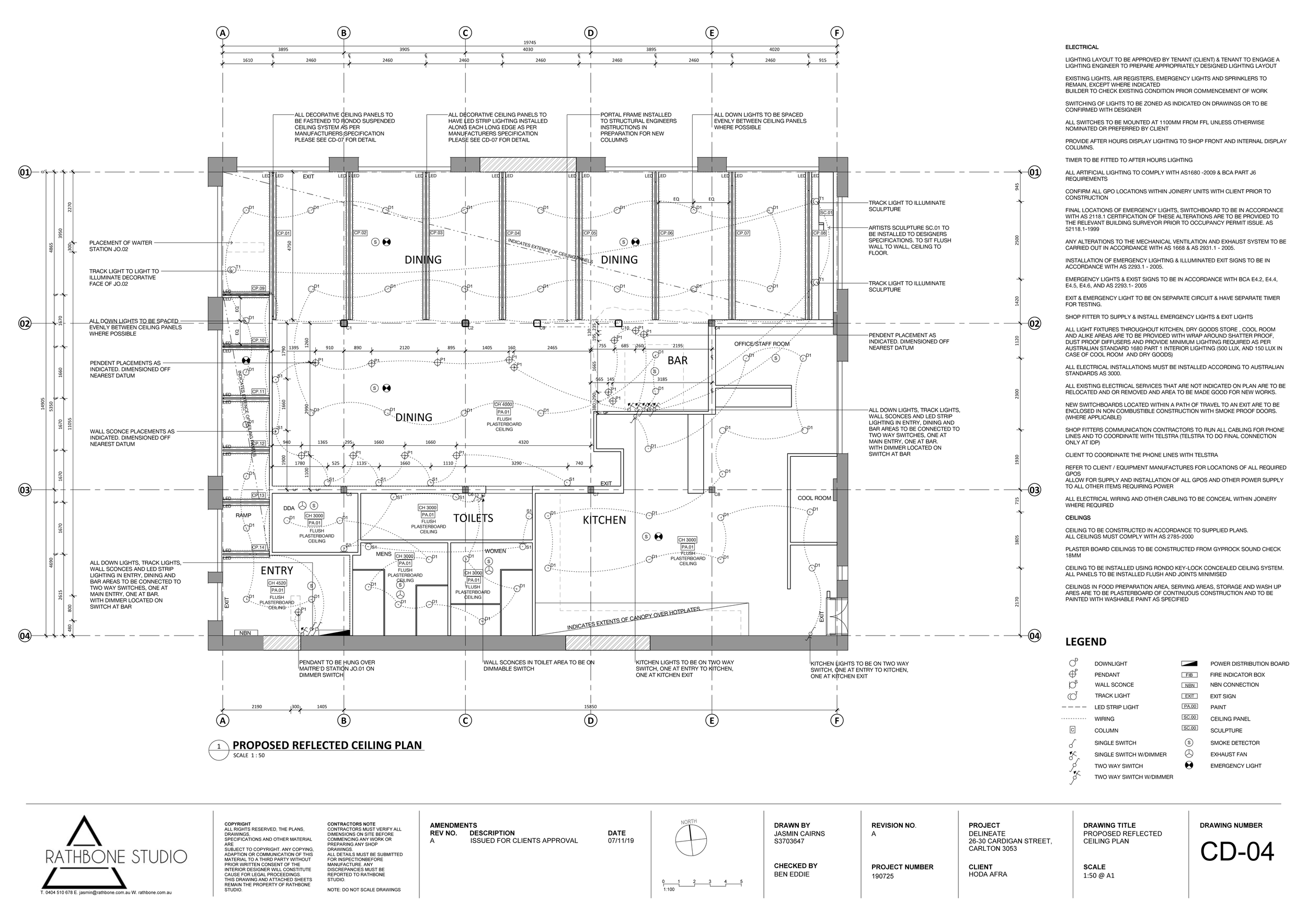
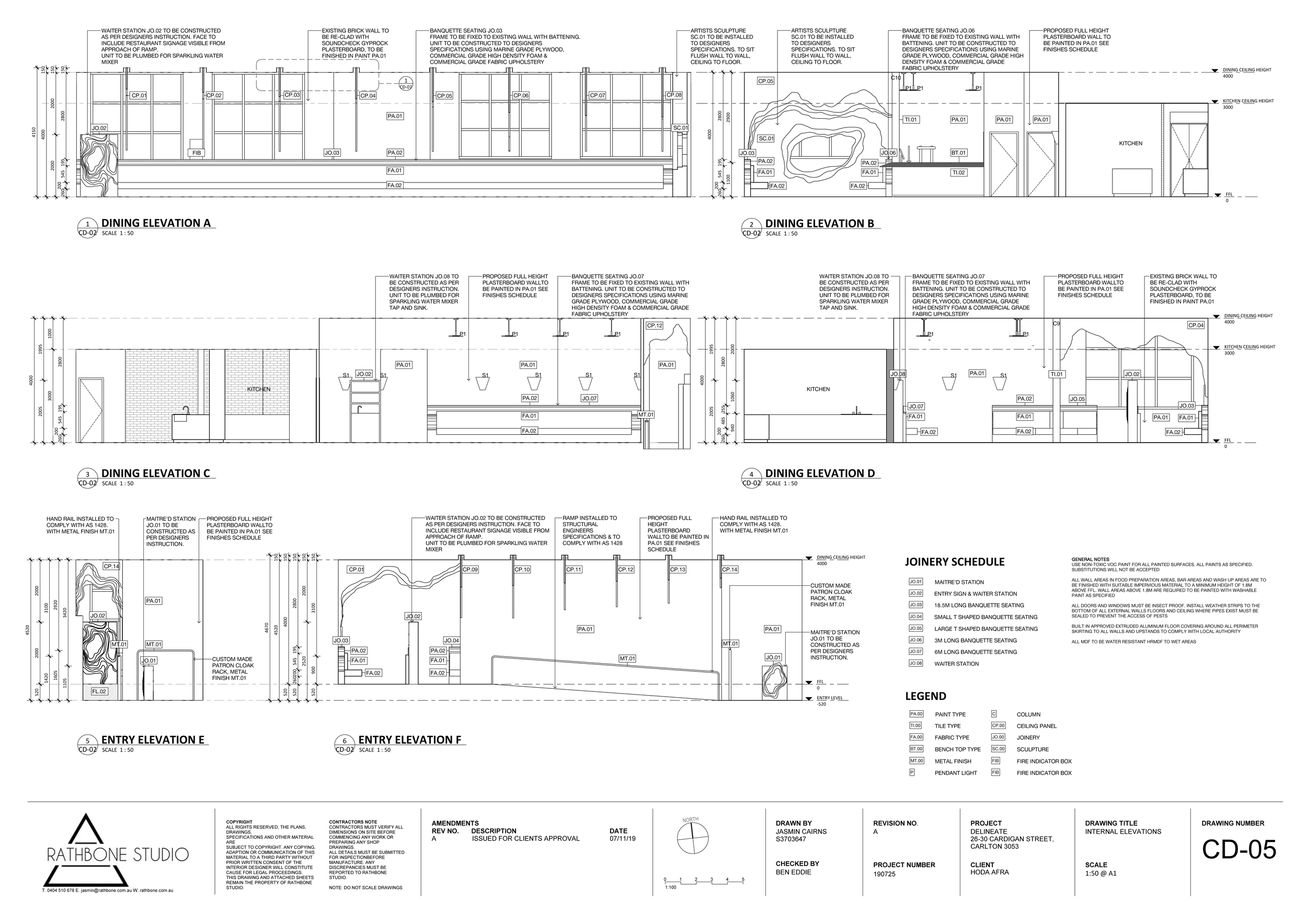
Cardigan Street
Delineate, A Fine Dining Restaurant
Cardigan Street
Bennetts Lane
Montague Street